Projeto de Arquitetura

O projecto de arquitetura foi aprovado por unanimidade na Assembleia Geral do dia 26 de outubro de 2025
46 Habitações:
12 – T0
22 – T1
12 – T2
Tipologia T0

Imagem

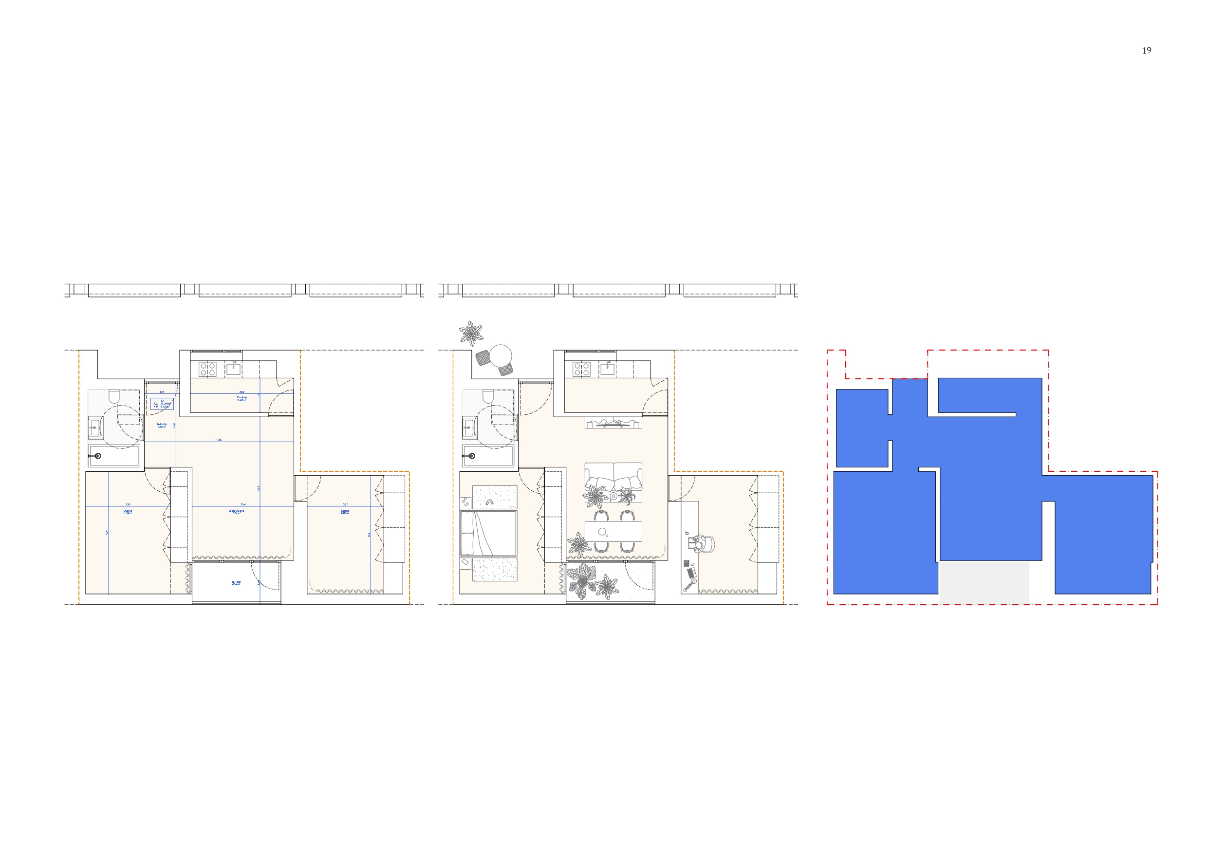
Tipologia T1

Imagem

Tipologia T2

Imagem

Implantação no terreno / áreas exteriores
Imagem

Imagem

Plantas do edifício:
Piso -1
Piso 0
Piso 1
Piso -1

ImagemÁrea de hidroterapia, zona técnica, salas ocupacionais e arrecadações

Piso 0

ImagemRestaurante, área de fisioterapia e ginásio

Piso 1

ImagemÁrea de saúde, gabinete médico e de enfermagem, quartos

Alçado Tipo Habitação

Imagem